Urban Planning

Housing

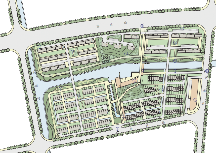
Project Background

Our aim for this project was to give vitality to a new neighborhood of Qingpu. We aimed to create a human scale design, using modern materials to explore the relationship between the buildings, streets and canals of traditional Chinese water towns. This design won 1st prize amongst several designs.


Location

Shanghai


Timeline

2004


Site Area

10.5 hectares